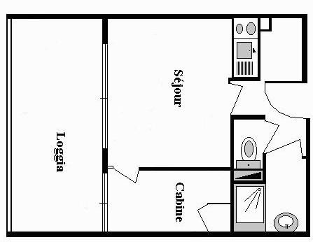
STUD PCG71A / Studio cabine avec Véranda de 10m², parking et ascenseur
Verfügbarkeiten
Informationen
- GEHÄUSETYP :
- Studio
- Vereinfachte Wohnform :
- T1
- Oberfläche :
- 22 m2
- Zugang für Menschen mit eingeschränkter Mobilität :
- Nein
- Akzeptierte Tiere :
- Nein
- Maximale Kapazität :
- 4 Personen
- Niveau :
- 5ème étage
Ausrüstung und Dienstleistungen
- Beschreibung des Hauses :
- Private Parkplätze
- Gartenmöbel
- Getrennte Toilette
- Badezimmer mit Dusche
- Beschreibung des Komforts :
- Kaffeemaschine
- Kühl-/Gefrierschrank
- Beatmungsgerät
- Bügelbrett
- Glas-Keramik-Platten
- Fernsehen
- Ausrüstung :
- WIFI
- Mikrowelle
- WIFI
- Eisen
- Staubsauger
- Zusätzliche Informationen :
- Aufzug
- Veranda
- Ausrüstung und Dienstleistungen :
Kontaktdaten des Besitzers
Agence Amarine
Chemin des Quilles
Les Marines de St Clair Bat A
BP 10303
34200
SETE
FICHE_INFO_SIMPLE_LIBELLE_DESTINATION
2 rue du grand Large
Chemin des Quilles
34200
SETE
GPS-Koordinaten
Breitengrad : 43.39594141097039
Längengrad : 3.6628760858444593




































